逝者如斯夫,不舍昼夜
日月更换,四季交替,一个平衡的世界应当是循环有序的,
而孩子们的生活也应当是动静结合,松弛有度的。
在“动”与“静”不同的功能区交替与穿插,
孩子们在动与静之间感知着,思考着。
在沉静与欢腾之间体验着,探索着!
▼大厅设计


大厅将整个园所划分为动静两部分,
是动静分区的过渡带,
有着承上启下的关键作用,
同时兼顾了接待与游戏的功能。
我们运用大面积白色和木色自然色。





整个空间打造成让孩子们、自发地区探 索、发掘和创造属于自己趣味空间和生动体
验。探索和运动区是幼 儿园的重点区域。在这个开放式的,明亮而怡人的活动区、感知触觉的方式、还有安静的
方式。一面可以趣味探索性游戏;一面是可以安静下来,进入阅读,去观察“自然”等。这里不仅是幼儿园,也
是从家里到外面世界的过渡,是可以盛放他们童心、童趣的健康空间。




融合了柔和的灯光与自然舒心的色调,
为室内空间与户外世界之间建立了横向关系和自然过渡,
同时又模糊了彼此的边界。
从沙坑、游戏区到阅读区域,为儿童创造出一个平静而无界限的学习环境。
在园内铺贴木地色地胶,脚感舒适,小朋友蹦蹦跳跳即使摔跤也无大碍。设计师认为,木制作的柜子选择自然
真实的材料,能让小朋友更好的感知。
▼美术室


▼美术室



▼党建长廊


▼教师党建学习地

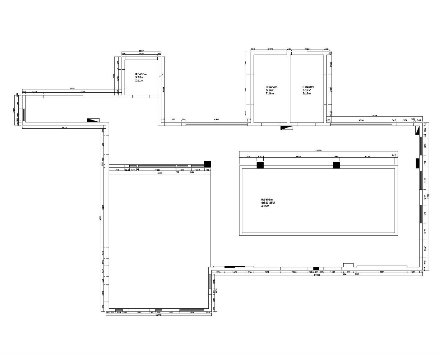
一层原始尺寸图

项目名称丨幼儿园设计
设计主创丨何 静、马伟华
设计团队丨必然空间设计
施工团队丨必然空间工程
项目地点丨湖北武汉
设计时间丨2019年9月
逝者如斯夫,不舍昼夜
日月更换,四季交替,一个平衡的世界应当是循环有序的,
而孩子们的生活也应当是动静结合,松弛有度的。
在“动”与“静”不同的功能区交替与穿插,
孩子们在动与静之间感知着,思考着。
在沉静与欢腾之间体验着,探索着!
▼大厅设计


大厅将整个园所划分为动静两部分,
是动静分区的过渡带,
有着承上启下的关键作用,
同时兼顾了接待与游戏的功能。
我们运用大面积白色和木色自然色。





整个空间打造成让孩子们、自发地区探 索、发掘和创造属于自己趣味空间和生动体
验。探索和运动区是幼 儿园的重点区域。在这个开放式的,明亮而怡人的活动区、感知触觉的方式、还有安静的
方式。一面可以趣味探索性游戏;一面是可以安静下来,进入阅读,去观察“自然”等。这里不仅是幼儿园,也
是从家里到外面世界的过渡,是可以盛放他们童心、童趣的健康空间。




融合了柔和的灯光与自然舒心的色调,
为室内空间与户外世界之间建立了横向关系和自然过渡,
同时又模糊了彼此的边界。
从沙坑、游戏区到阅读区域,为儿童创造出一个平静而无界限的学习环境。
在园内铺贴木地色地胶,脚感舒适,小朋友蹦蹦跳跳即使摔跤也无大碍。设计师认为,木制作的柜子选择自然
真实的材料,能让小朋友更好的感知。
▼美术室


▼美术室



▼党建长廊


▼教师党建学习地

一层原始尺寸图

项目名称丨幼儿园设计
设计主创丨何 静、马伟华
设计团队丨必然空间设计
施工团队丨必然空间工程
项目地点丨湖北武汉
设计时间丨2019年9月